추모사업
박관현기념재단은 박관현 열사의 정신을 계승하기 위한 추모사업을 진행하고 있습니다. 매년 10월12일 국립5.18민주묘지에서 진행하는 추모제를 기본으로, 30주기에는 평전 제작, 학술대회 등을 진행하였습니다. 40주기에는 추모제와 40주기 기념 잡담회도 개최하였습니다. 박관현 열사의 숭고한 시대정신을 더 많은 시민들에게 알리고 함께할 수 있도록, 추모사업을 기본으로 다양한 사업을 힘차게 벌여나가겠습니다.
추진경과
- · 故박관현열사 생사주변 및 추모시설 정비 계획(안)'24. 6.
- · 2025년도 지방자치단체 전환사업 예산 신청'24. 6.
- · 故박관현열사 추모시설 정비사업 실시설계 용역 시행'25. 3.
- · 故박관현열사 추모시설 정비사업 실시설계 용역 계약 체결'25. 4.
- · 故박관현열사 추모시설 정비공사 시행'25. 6.
- · 故박관현열사 추모시설 정비공사 폐기물 처리용역 시행'25. 6.
- · 故박관현열사 생가정비사업 실시설계 용역 시행'25. 6.
- · 故박관현열사 추모시설 관급자재(조달) 구입6.~11.
- - 이형철근, 레미콘, 화강석판석
- · 故박관현열사 추모시설 정비공사 폐기물 처리용역 시행'25. 6.
- · 故박관현열사 추모시설 정비공사 계약 체결'25. 7.
- · 故박관현열사 추모시설 정비공사 중지 통보'25. 8.
- - 중지기간 : 8. 1. ~ 9. 1.
- - 사유: 폭염
- · 故박관현열사 추모시설 정비공사 폐기물 처리용역 중지 통보'25. 8.
- - 중지기간 : 8. 1. ~ 9. 1.
- - 사유: 폭염
- · 故박관현열사 생가주변정비사업 실시설계 계약 체결'25. 8.
- · 故박관현열사 추모시설 정비공사 기간 연장'25. 10.
- - 변경: 7. 15. ~ 11. 12.
- - 사유: 관급자재 납품지연
- · 故박관현열사 생가주변정비사업 실시설계 연장'25. 10.
- - 변경: 2025. 8. 12. ~ 11. 9.
- - 사유: 협의 지연
- · 故박관현열사 추모시설 정비사업 공사비 집행'25. 12.
- · 故박관현열사 생가주변공사 설계용역비 집행'25. 12.
- · 故박관현열사 생가주변공사 명시이월'25. 12.
- - 생가정비 공사비 741,394천원
- - 감리비: 10,000천원
금후 계획
- · 故박관현열사 생가주변공사 계약심사 및 일상감사 요청'26. 1.
- · 故박관현열사 생가주변공사 계약 의뢰2.
- · 故박관현열사 생가주변공사 시행3.~ 10.
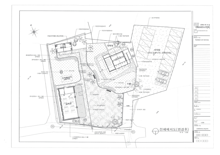
故박관현열사 생가주변 및 추모시설 정비사업
(단위 : 천원)
| 연번 | 구분 | 사업비 | 사업 기간 | 비고 |
|---|---|---|---|---|
| 1 | 故박관현열사 추모시설 실시설계용역 | 13,350 | 2025. 3. ~ 5. | |
| 2 |
故박관현열사 추모시설 정비공사 관급자재 (레미콘, 이형 철근, 화강석판석) |
32,543 | 2025. 6. ~ 11. | |
| 3 | 故박관현열사 추모시설 폐기물 처리 용역 | 10,948 | 2025. 7. ~ 9. | |
| 4 | 故박관현열사 추모시설 정비공사 | 154,645 | 2025. 7. ~ 11. | |
| 5 | 故박관현열사 생가주변정비 실시설계 | 37,120 | 2025. 8. ~ 11. | |
| 6 | 故박관현열사 생가주변 정비공사 | 741,394 | 2026. 2. ~ 10. | 명시이월 |
| 7 | 故박관현열사 생가주변정비 감리비 | 10,000 | 2026. 2. ~ 10. | 명시이월 |
| 합계 | 1,000,000 |
故박관현열사 생가주변 정비사업
(단위 : 천원)
| 연번 | 구분 | 사업비 | 사업 기간 | 비고 |
|---|---|---|---|---|
| 1 | 건축공사 | 616,712 | 2026. 4. ~ 10. | |
| 2 | 건설 폐기물 처리비 | 12,543 | 2026. 3. ~ 4. | |
| 3 | 지정 폐기물 처리비(슬레이트) | 1,638 | 2026. 3. ~ 4. | |
| 4 | 전기공사 | 32,571 | 2026. 9. ~ 10. | |
| 5 | 통신공사 | 69,513 | 2026. 9. ~ 10. | |
| 6 | 감리비 | 10,000 | 2026. 2. ~ 10. | |
| 합계 | 742,977 |

